產品簡介
ZSSY鹽用振動篩,結構合理,采用振動電機作激振源,物料進行拋擲運動,達到篩分處理的目的,改掉了滾筒篩和連桿住復篩的堵篩、粘網、換網難的缺點。
適用行業
適用于煤炭、礦山、冶金、建材、電力、水利、輕工和化工等行業。
適用物料
適用于篩除鹽類、水泥、石灰及類似的顆粒和粉狀物料的異物和結塊等。
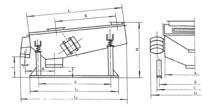
產品結構
該設備主要由振動電機、篩網、篩箱、減震彈簧、支架、底座等組成。
該設備主要由振動電機、篩網、篩箱、減震彈簧、支架、底座等組成。
工作原理
該設備采用振動電機作激振源,對物料進行拋擲運動,達到篩分處理的目的。
產品特點
1、振動加速度不超過20g(g:9.8m/s2重力加速度);
2、環境溫度不超過40℃(若超過40℃應降低功率使用);
3、海拔不超過1000米,若超過1000米但不超過4000米,則每增高1000米,其溫升限值應降低0.5℃;
4、電源:三相380V,頻率50HZ;
5、工作方式:S1(連續);
6、定子繞組溫升值(電阻法)不超過80K;
7、軸承的容許溫度(溫度計法)應不超過95℃;
8、主機工作電流不超過電機銘牌上的數據,否則降低激振力使用;
9、使用環境應無導電粉塵、易燃、易爆及腐蝕性氣體或者采用防爆電機。
型號說明

安裝、調整、維護
振動電機底腳螺栓孔與底腳螺栓的配合應緊密。底腳螺栓要牢固可靠,需用止逆螺母或彈簧墊圈等鎖緊,以防止松動。
激振力調整:每臺電機兩端偏心塊同方向轉動,使活動偏心塊所需激振力刻度線對正軸頭該線。
操作使用:兩臺電機應該同步反向運轉,否則調換相序。電機累計運行100小時內,每隔24小時,對緊固件(螺栓)重新緊固一次,運行100小時止,應再次增強緊固一遍。經常打開觀察口,觀察和清理篩上殘留異物。
保養檢修
振動電機運行累計1000小時左右,清洗軸承,更換潤滑脂。定期進行檢修,三個月一次小修,每年一次大修。
需要更換篩網時,先取下蓋板松開壓網板條,取出板條后拿出舊網另外將同樣大的新網放入撐緊,并逐一重新壓緊壓網板條。需要更換彈簧時,注意彈簧和其它零件不要入料倉內,以免卡住





客服1